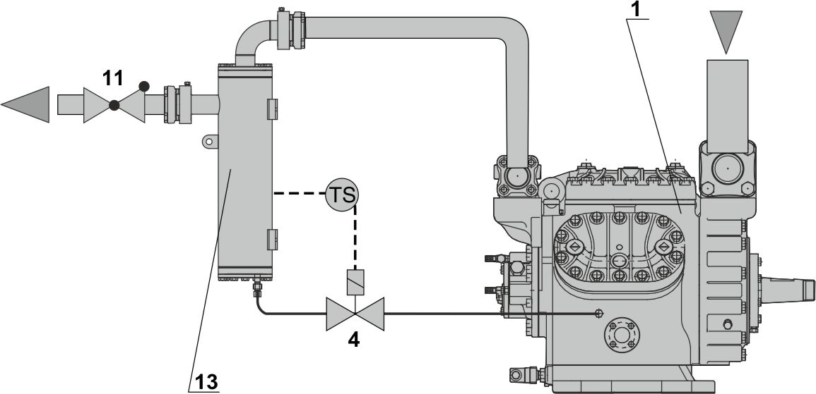
Oil circuit W6.A-K

Legend items | |
---|---|
1 | Compressor (for OSA74, with motor) |
2 | Oil filter |
3 | Oil flow switch |
4 | Oil solenoid valve |
5 | Sight glass |
6 | Primary oil separator / combined oil separator |
7 | Oil level switch |
8 | Oil heater thermostat |
9 | Oil heater |
10 | Oil cooler (if required) |
11 | Check valve |
12 | Solenoid valve (oil return secondary stage) |
13 | Secondary oil separator (the only oil separator for reciprocating compressors) |
14 | Shut-off valve |
15 | Solenoid valve (standstill bypass) ( if needed) |
TS | Thermostat (oil return release) |
Legend includes connection points that are not used in all diagrams.