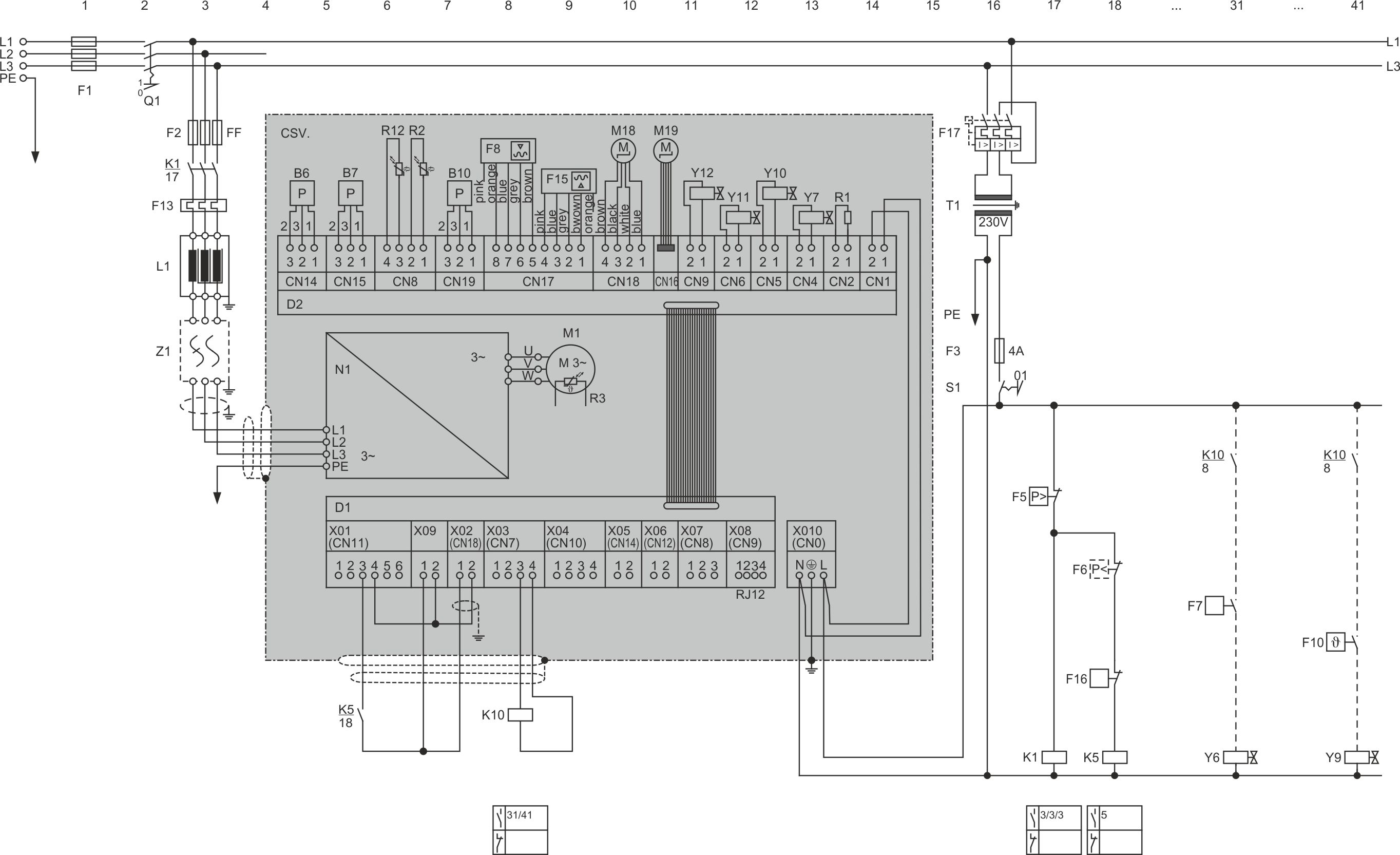
CSV. Без STO

Последняя версия эл. схемы:
12.02.2021
Сокращ. | Компонент | |
---|---|---|
B6 | Датчик высокого давления ① | |
B7 | Датчик низкого давления ① | |
B10 | Датчик давления на выходе охлаждающей плиты | |
D1 | Плата управления FI ① | |
D2 | Плата расширения FI ① | |
F1 | Главный предохранитель | |
F2 | Предохранитель компрессора | |
F3 | Предохранитель цепи управления | |
F5 | Реле высокого давления | |
F6 | Реле низкого давления | |
F7 | Задержка включения “ECO" | |
F8 | Датчик уровня масла (минимальный уровень масла)① | |
F10 | Регулирующий термостат для маслоохладителя | |
F13 | Устройство защиты от перегрузки | |
F15 | Датчик уровня масла (максимальный уровень масла) | |
F16 | Реле для функций защиты в соответствии с требованиями заказчика (защита от замерзания, расход воды и т. д.) | |
F17 | Предохранитель разделительного трансформатора | |
K1 | Контактор компрессора | |
K5 | Вспомогательный контактор “компрессор готов к работе” | |
K10 | Вспомогательное реле “компрессор работает” (для сообщения контроллеру системы) | |
L1 | Линейный реактор ② | |
M1 | Мотор компрессора ① | |
M18 | Электронный клапан давления испарителя для охлаждающей плиты | |
M19 | Электронный расширительный клапан для охлаждающей плиты | |
N1 | Преобразователь частоты (FI) ① | |
Q1 | Главный выключатель | |
R1 | Подогреватель масла ① | |
R2 | Датчик температуры масла (NTC) ① | |
R3 | Датчик температуры в моторе (NTC) ① | |
R12 | Датчик температуры на выходе охлаждающей плиты | |
S1 | Выключатель управления (on/off) | |
T1 | Трансформатор цепи управления (пример для 230 V, требуется согл. EN60204-1) | |
Y6 | Соленоидный клапан "ECO" | |
Y7 | Соленоидный клапан “LI” (опция для CSVH) ② | |
Y9 | Соленоидный клапан “линия маслоохладителя” | |
Y10 | Соленоидный клапан “FI охлаждение” ① | |
Y11 | Соленоидный клапан "Vi золотник +" ① | |
Y12 | Соленоидный клапан "Vi золотник -" ① | |
Z1 | RFI фильтр ② | |
① | Компонент, входящий в комплект поставки компрессора | |
② | Компонент может быть добавлен в качестве опции в комплект поставки компрессора. Его можно доустановить. |
Техническая документация для дополнительной информации: